Choose thermally broken steel windows and doors for the best thermal performance available.
Envision Steel’s thermally broken windows and doors combine fiberglass-reinforced extrusion with high-density polyurethane for superior insulation and strength. With a sleek, durable design, they maximize energy efficiency and U-value performance. Offering versatile configurations, glazing options, and corner styles, they seamlessly blend style, durability, and thermal performance for any space.
The first narrow sightline, energy efficient, thermally broken steel window and door system.
Extremely energy efficient.
Durable design capable of utilizing triple pane glass.
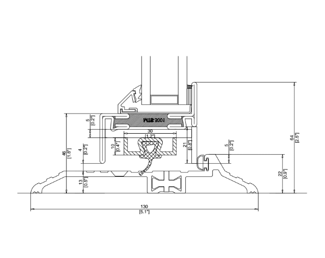
Dual neoprene gasketing system is removable, replaceable, extremely durable and very efficient.

Envision Steel Windows and Doors feature advanced thermally broken technology, combining fiberglass-reinforced extrusion with high-density polyurethane resin for exceptional insulation and structural integrity. This process ensures a seamless bond, enhancing durability while maximizing energy efficiency with superior U-value performance.
Designed for both strength and style, our thermally broken windows and doors maintain a sleek, narrow profile without compromising sturdiness. With four glazing bead profiles, mechanical or welded corners, and true or simulated divided glazing, our system offers outstanding design flexibility. Available in a variety of configurations, they seamlessly blend modern performance with timeless aesthetics.
For steel entry systems, we utilize the Montanstahl/Ottostumm Swiss thermal barrier steel window system, merging classic steel window design with cutting-edge manufacturing technology for unmatched quality and efficiency.









